- Woonoppervlakte
- Circa 137 m²
- Perceeloppervlakte
- Circa 434 m²
- Bouwjaar
- Gebouwd in 1985
- Aantal kamers
- 6 kamers (4 slaapkamers)
Ben je op zoek naar een woning waar je zó in kunt? Een huis dat modern, compleet verbouwd én toekomstbestendig is? Dan is Wilhelminalaan 116 in Reusel precies wat je zoekt. Deze recent gemoderniseerde woning combineert comfort, luxe en duurzaamheid op een manier die je niet vaak tegenkomt.
Duurzaam & zorgeloos wonen
Met energielabel A++ ben je helemaal klaar voor de toekomst. De woning is volledig gasloos, uitgerust met een moderne warmtepomp (die ook kan koelen in de zomer), 17 zonnepanelen en vloerverwarming op de volledige begane grond – zelfs in de garage. Dit betekent: lage energielasten én maximaal wooncomfort het hele jaar door.
Sfeervol, licht en helemaal van nu
Binnen kom je in een strak afgewerkte, instapklare woning waar direct de moderne leefstijl voelbaar is. De luxe keuken is een echte blikvanger, voorzien van hoogwaardige apparatuur en een stijlvolle wijnkoelkast. Hier kook je niet alleen; hier leef je.
De extra badkamer op de begane grond biedt volop gemak, bijvoorbeeld voor logees, thuiskomende sporters of als je lekker in de tuin hebt gewerkt.
Ruimte om te leven
De woning beschikt over een ruime, onderhoudsvriendelijke tuin waar je kunt relaxen, spelen of vrienden uitnodigen voor een gezellige avond. De garage – met vloerverwarming! – is ideaal als werkruimte, hobbyplek of luxe opslag.
Waarom Wilhelminalaan 116?
- Recent gemoderniseerd, verbouwd en verduurzaamd
- Gasloos, warmtepomp en 17 zonnepanelen
- Energielabel A++
- Vloerverwarming over de volledige begane grond
- Luxe keuken met wijnkoelkast
- Extra badkamer beneden
- Ruime tuin
- Instapklaar
Algemeen:
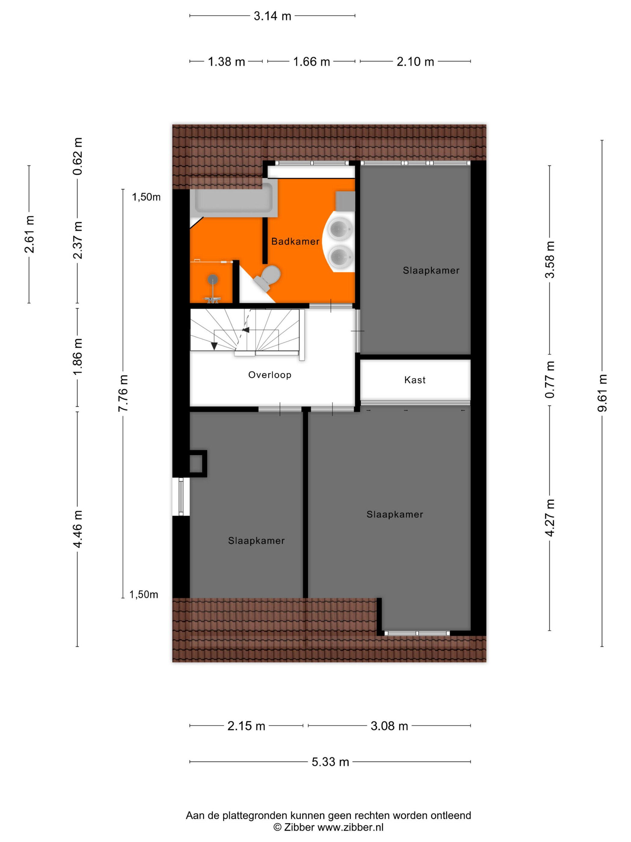
- Woonoppervlakte: 137 m2
- Overig inpandige ruimte: 17 m2
- Gebouw gebonden buitenruimte: 17 m2
- Externe bergruimte: 19 m2
- Perceelsoppervlakte: 434 m2
Wil jij zonder klussen verhuizen naar een duurzame en luxe woning op een fijne locatie in Reusel?
Plan dan snel een bezichtiging – dit is er één die je gezien móét hebben.
Overdracht
- Vraagprijs
- € 610.000 k.k.
- Status
- Verkocht
- Aanvaarding
- In overleg
Bouw
- Object type
- Eengezinswoning, 2 onder 1 kapwoning
- Soort bouw
- Bestaande bouw
- Bouwjaar
- 1985
- Soort dak
- Zadeldak bedekt met pannen
Oppervlakte en inhoud
- Woonoppervlakte
- 137 m²
- Perceeloppervlakte
- 434 m²
- Inhoud
- 543 m³
- Overige inpandige ruimte
- 17 m²
- Externe bergruimte
- 19 m²
- Gebouwgeb. buitenruimte
- 17 m²
Indeling
- Aantal kamers
- 6 kamers (4 slaapkamers)
- Aantal badkamers
- 2 badkamers
- Badkamervoorzieningen
- Toilet, inloopdouche, vloerverwarming ligbad, toilet, douche, dubbele wastafel
- Aantal woonlagen
- 3 woonlagen
- Voorzieningen
- Rolluiken, zonnepanelen
Energie
- Energielabel
- A++
- Energielabel registratie
- 27-11-2025
- Isolatie
- Dakisolatie, muurisolatie, vloerisolatie
- Verwarming
- Vloerverwarming gedeeltelijk, houtkachel
Buitenruimte
- Ligging
- Aan rustige weg, in woonwijk
- Tuin
- Achtertuin, voortuin
- Afmetingen achtertuin
- 388 m² (15.5 meter diep en 25 meter breed)
- ligging tuin
- Gelegen op het zuiden en bereikbaar via achterom
Bergruimte
- Schuur / berging
- Vrijstaande houten berging
- Voorzieningen
- Voorzien van elektra
Garage
- Soort garage
- Aangebouwd steen
- Capaciteit
- 1 auto
- Voorzieningen
- Verwarming, elektra, vliering
- Isolatie
- Dakisolatie, muurisolatie, vloerisolatie
Parkeergelegenheid
- Soort parkeergelegenheid
- Op eigen terrein
Energieverbruik in Reusel
Energielabel deze woning
Energielabel A++
Publicatie energielabel: 27-11-2025
Stroomverbruik per jaar
(Gemiddelde twee onder een kap in Reusel)
Gasverbruik per jaar
(Gemiddelde twee onder een kap in Reusel)
* Cijfers zijn afkomstig van het CBS en bedoeld als indicatie en kunnen verschillen voor deze woning
Indicatie hypotheeklasten
Eigen inleg:
Spaargeld / overwaarde
Rente:
Laagste 10-jaars rente
Laagste 10-jaars rente
2,98% - Centraal Beheer Groen... - NHG
3,25% - Centraal Beheer Groen... - 80%
Laagste 20-jaars rente
3,29% - Centraal Beheer Groen... - NHG
3,52% - Centraal Beheer Groen... - 80%
Laagste 30-jaars rente
3,41% - Centraal Beheer Groen... - NHG
3,74% - Centraal Beheer Groen... - 80%
Hypotheek:
Bruto maandlasten: € 0 p/m
Netto maandlasten: € 0 p/m
Hoe berekenen we dit?
Het rentepercentage is gebaseerd op de laagste 10 jaars vaste rente voor één hypotheekdeel. De vermelde rente (3.25% zonder NHG) is gecontroleerd op 27-12-2025. Deze berekening is gebaseerd op een annuïteitenhypotheek die volledig wordt afgelost, waarbij de maandlasten gedurende de gehele looptijd gelijk blijven. De werkelijke rente en netto maandlasten kunnen variëren, afhankelijk van uw persoonlijke situatie en de hypotheekverstrekker. Raadpleeg een financieel adviseur voor een nauwkeurige berekening en advies. Aan deze berekening kunnen geen rechten worden ontleend; het dient enkel als indicatie.
Documentatie
Kadastrale kaart
Leefomgeving
Kadaster
Brochure
Plattegronden PDF
BAG uittreksel
3D Plattegronden
Bekijk onze website
Bezichtiging
Bod uitbrengen
Waardebepaling
Zoekopdracht
Alles downloaden
Zonnegrenzen bekijken
Op de kaart
Inwoners in Reusel
Cijfers voor postcodegebied 5541
- Totaal aantal inwoners
- 8705 inwoners
- Mannen
- 51%
- Vrouwen
- 49%
Inwoners in Reusel
Cijfers voor postcodegebied 5541
- tot 15 jaar
- 17%
- 15 tot 25 jaar
- 10%
- 25 tot 35 jaar
- 25%
- 45 tot 65 jaar
- 27%
- 65 en ouder
- 21%
Huishoudens in Reusel
Cijfers voor postcodegebied 5541
- Eenpersoons zonder kinderen
- 29%
- Meerpersoons zonder kinderen
- 34%
- Huishoudens zonder kinderen
- 63%
Huishoudens in Reusel
Cijfers voor postcodegebied 5541
- Huishoudens met één kind
- 5%
- Huishoudens met meerdere kinderen
- 31%
- Huishoudens met kinderen
- 36%
Woningen in Reusel
Cijfers voor postcodegebied 5541
- Woningen voor 1945
- 7%
- Woningen tussen 1945 en 1965
- 15%
- Woningen tussen 1965 en 1975
- 17%
- Woningen tussen 1975 en 1985
- 17%
- Woningen tussen 1985 en 1995
- 16%
Woningen in Reusel
Cijfers voor postcodegebied 5541
- Woningen tussen 1995 en 2005
- 10%
- Woningen tussen 2005 en 2015
- 13%
- Woningen na 2015
- 4%
- Huurwoningen
- 20%
- Koopwoningen
- 80%
Overige in Reusel
Cijfers voor postcodegebied 5541
- Gemiddelde WOZ waarde
- € 287.000,-
- Personen onder de 65 met uitkering
- 5%
Overige in Reusel
Cijfers voor postcodegebied 5541
- Adressen per km²
- 783
- Stedelijkheid (schaal 1 op 5)
- 40%
Korte feiten over Reusel
Reusel (Brabants: Reuzel) is de hoofdplaats van de gemeente Reusel-De Mierden, in de Nederlandse provincie Noord-Brabant. Reusel is gelegen in regio de Kempen. Dichtstbijzijnde grote steden zijn Turnhout, Tilburg en Eindhoven. Reusel is een van de Acht zaligheden.
Ben Straatman Makelaardij
Indien u vragen heeft of u wilt een bezichtiging inplannen, dan kunt u gebruik maken van het formulier hiernaast. Er zal daarna op korte termijn contact met u worden opgenomen.
Contact opnemen
Ben Straatman Makelaardij
Welkom bij Ben Straatman Makelaardij, een eigentijds Kempisch makelaarskantoor. Of je nu op zoek bent naar een makelaar om je woning te verkopen, je droomhuis gevonden hebt, of hulp nodig hebt bij gedeeltelijke zelf-facilitatie van de aankoop of verkoop, bij ons ben je aan het juiste adres. Wij bieden de professionele ondersteuning en zekerheid die je zoekt.
Mijn naam is Ben Straatman, oprichter van Ben Straatman Makelaardij. Geboren in Eindhoven en sinds mijn zevende woonachtig in Reusel - een echte Kempenaar dus. Getrouwd met Sanne en trotse vader van vier kinderen (Neel, Mette, Vik en Nand), woon ik met mijn gezin in het prachtige buitengebied van Reusel. Naast mijn werk als gedreven makelaar, ben ik graag thuis bij mijn gezin, sport ik wanneer het kan, luister ik naar muziek en geniet van ons gezinsleven.
Wil je meer weten over wat wij voor je kunnen betekenen? Ik kom graag langs om de mogelijkheden te bespreken, of nodig je uit voor een kop koffie op ons kantoor.
Nieuwste reviews
-
Ten Einde 17
Ben is een hele prettige, deskundige makelaar en tevens fijn in de omgang. Ons huis was binnen no time verkocht!
-
Luuk Huijbregts
Ben is een hele prettige, deskundige makelaar en tevens fijn in de omgang. Ons huis was binnen no time verkocht!
-
de Speelman 27
Ben heeft ons geweldig geholpen! Deskundig, enthousiast en met goed advies dacht hij overal in mee. Altijd bereikbaar en alles soepel gerege...